Mustang gt 95 airbag moduulin piipitys/nollaus
Mustang gt 95 airbag moduulin piipitys/nollaus
Eli tämmöinen vaiva alkoi viikko sitten, voikohan olla kytköksissä jotenkin siihen että öljypohjan alla olevat vahviketukiraudat raapaisi soratiellä ajaessa maahan madallusjousten vaihdon jälkeen ja pari minuuttia tämän jälkeen alkoi piippaamaan tuota sarjaa vai onko vain sattuma, Lieneekö pohjassa päin jotain antureita/liittimiä johon olisi voinut lentää irtosoraa/tulla iskua tuossa yhteydessä? Airbag valo ei siis pala eikä vilkuta minkäänlaista koodia kun laittaa virrat päälle, mutta joka kerta kun laittaa virrat päälle niin piippaa tuon sarjan, ja kesken ajon tietyin välein myös, jossain taisi lukea 45 min välein. Pystyykö tuon piipityksen jotenkin kuittaamaan/moduulin nollaamaan että loppuisi tuo piipitys vai onko ainut vaihtoehto hommata uusi moduuli
Apparin hansalokeron alapuolella olevasta liittimestä kokeilin nollata yhdistämällä liittimet, mutta ei ollut vaikutusta.
Apparin hansalokeron alapuolella olevasta liittimestä kokeilin nollata yhdistämällä liittimet, mutta ei ollut vaikutusta.
- Pappacosworth
- Aina äänessä
- Viestit: 1375
- Liittynyt: 06 Tammi 2008, 10:13
- Auto: Focus ST250/Aprilia Tuareg 660
- Paikkakunta: Koskenkorva
- Viesti:
Re: Mustang gt 95 airbag moduulin piipitys/nollaus
Ilmeisesti piippaus tulee silloin kun lampun virtapiiri on poikki. Tarkasta että mittaristossa on lamppu paikalla ja se on ehjä.
http://www.veryuseful.com/mustang/tech/ ... Bag95.html
http://www.veryuseful.com/mustang/tech/ ... Bag95.html
#ECU tuning Ford 1987-2019#
https://texelectric.webnode.fi/
https://texelectric.webnode.fi/
Re: Mustang gt 95 airbag moduulin piipitys/nollaus
Taisin selittää aiemmin hieman epäselvästi, eli tarkoitin että airbag valo ei jää palamaan/Vilkkumaan kun laittaa virrat päälle taikka käyntiin mutta hetkellisesti palaa kuten muutkin merkkivalot mittaristossa kun laittaa virrat päälle, eli polttimo siis on kyllä paikallaan ja kunnossa.
- Pappacosworth
- Aina äänessä
- Viestit: 1375
- Liittynyt: 06 Tammi 2008, 10:13
- Auto: Focus ST250/Aprilia Tuareg 660
- Paikkakunta: Koskenkorva
- Viesti:
Re: Mustang gt 95 airbag moduulin piipitys/nollaus
http://www.mustangclub.fi/board/viewtop ... lit=airbag
http://www.mustangclub.fi/board/viewtop ... ag#p110600
olisko tuosta apua
http://www.mustangclub.fi/board/viewtop ... ag#p110600
olisko tuosta apua
#ECU tuning Ford 1987-2019#
https://texelectric.webnode.fi/
https://texelectric.webnode.fi/
Re: Mustang gt 95 airbag moduulin piipitys/nollaus
Ei auttanut vaikka yritin tuolta liittimestä nollata, ja ihmetyttää kun ei tosiaan vilkuta tuo airbagin valo mitään koodia eikä ajon aikana/käynnissä ollessa pala 
- Vee8
- Aina äänessä
- Viestit: 1138
- Liittynyt: 25 Touko 2004, 15:34
- Auto: Ford Mustang GT 1994
Ford Mustang Sportsroof 1969
Ford F-150 Lariat 2007
Ford Mustang Mach-E GT - Paikkakunta: Kangasala
Re: Mustang gt 95 airbag moduulin piipitys/nollaus
Syttyykö se lamppu hetkeksi kun virrat laittaa päälle?
"eihän tässä nyt kuinkaan voi käydä"
_____________________________
-----Ford Mustang GT -94-----
---Ford Mustang Sportsroof 1969 projekti----
---Ford F-150 Lariat 5.4 Triton 4x4---
------Ford Mustang Mach-E------
_____________________________
-----Ford Mustang GT -94-----
---Ford Mustang Sportsroof 1969 projekti----
---Ford F-150 Lariat 5.4 Triton 4x4---
------Ford Mustang Mach-E------
Re: Mustang gt 95 airbag moduulin piipitys/nollaus
Juu palaa kun on virrat päällä kuten myös check engine, laturin, jarrujenkin merkkivalot, mutta kaikki valot sammuu kyllä kun käynnistää.
- Vee8
- Aina äänessä
- Viestit: 1138
- Liittynyt: 25 Touko 2004, 15:34
- Auto: Ford Mustang GT 1994
Ford Mustang Sportsroof 1969
Ford F-150 Lariat 2007
Ford Mustang Mach-E GT - Paikkakunta: Kangasala
Re: Mustang gt 95 airbag moduulin piipitys/nollaus
Niinhän siinä jo lukikin, kun avaa silmät ja vähän katsoo.. 
"eihän tässä nyt kuinkaan voi käydä"
_____________________________
-----Ford Mustang GT -94-----
---Ford Mustang Sportsroof 1969 projekti----
---Ford F-150 Lariat 5.4 Triton 4x4---
------Ford Mustang Mach-E------
_____________________________
-----Ford Mustang GT -94-----
---Ford Mustang Sportsroof 1969 projekti----
---Ford F-150 Lariat 5.4 Triton 4x4---
------Ford Mustang Mach-E------
Re: Mustang gt 95 airbag moduulin piipitys/nollaus
Apua kaivattaisiin vieläkin 
- Vee8
- Aina äänessä
- Viestit: 1138
- Liittynyt: 25 Touko 2004, 15:34
- Auto: Ford Mustang GT 1994
Ford Mustang Sportsroof 1969
Ford F-150 Lariat 2007
Ford Mustang Mach-E GT - Paikkakunta: Kangasala
Re: Mustang gt 95 airbag moduulin piipitys/nollaus
On kyllä niin erikoinen tapaus ettei osaa oikeen mitään sanoa. Itse ehkä tarkistelisin liitännät ja jos ei mikään auta, tarvinnee etsiä toinen airbag monitor jolla kokeilla onko se itsessään vikaantunut
"eihän tässä nyt kuinkaan voi käydä"
_____________________________
-----Ford Mustang GT -94-----
---Ford Mustang Sportsroof 1969 projekti----
---Ford F-150 Lariat 5.4 Triton 4x4---
------Ford Mustang Mach-E------
_____________________________
-----Ford Mustang GT -94-----
---Ford Mustang Sportsroof 1969 projekti----
---Ford F-150 Lariat 5.4 Triton 4x4---
------Ford Mustang Mach-E------
Re: Mustang gt 95 airbag moduulin piipitys/nollaus
Otin koko airbaginohjausboxin irti niin loppui piipitys, jännä sinänsä että ei polta ilman tuota boxia tuota airbagin valoa "epänormaalisti", eli syttyy kun laittaa virrat päälle mutta ei jää silti palamaan kun käynnistää, luulin että jäisi palamaan koko ajan tauluun kun on liittimet irti ohjausyksiköltä. Sitä juuri mietin että onkohan se "vika" nyt tuossa boxissa vai auttaako edes uuden taikka käytetyn kunnossaolevan boxin laitto tilalle vai alkaako sekin piippaamaan samalla lailla...kun eikös se vikakoodi juurikin pitäisi näkyä tuon airbagin valon vilkkumisena? onko tietoa missä kohtaa sijaitsee ne sensorit/liittimet, kun juurikin sitä mietin että olisko mahdollista että joku liitin olis saanut osumaa/irronnut taikka sensori särkynyt tuon madalluksen jälkeisen testiajon jälkeen jolloin korkealla olllut soratien keskusta ryykkäsi öljypohjan alla olevan vahvikerautojen kanssa ja soraa heittänyt ties minne väliin.. .Yritin taas vkonloppuna auton alta tutkia ja etsiskellä näkyikö irrallisia liittimiä mutta ei sattunut silmään?? leimattua tuon saanee tosin ilmankin tuota boxin paikallaan oloa kun ei kerta valo pala taulussa ajonaikana., mutta olishan sen airbagin hyvä toki toimia...
Viimeksi muokannut gt95, 26 Elo 2015, 20:08. Yhteensä muokattu 1 kertaa.
- Pappacosworth
- Aina äänessä
- Viestit: 1375
- Liittynyt: 06 Tammi 2008, 10:13
- Auto: Focus ST250/Aprilia Tuareg 660
- Paikkakunta: Koskenkorva
- Viesti:
Re: Mustang gt 95 airbag moduulin piipitys/nollaus
Ettei vaan olis tehty jotain ohituskytkentöjä että menee läpi katsastuksesta.
#ECU tuning Ford 1987-2019#
https://texelectric.webnode.fi/
https://texelectric.webnode.fi/
- Firebolt
- Superpölöttäjä
- Viestit: 2875
- Liittynyt: 10 Heinä 2010, 15:39
- Auto: Autoton
- Paikkakunta: Kuopio
Re: Mustang gt 95 airbag moduulin piipitys/nollaus
Pappacossun kanssa samaa mieltä, toi haiskahtais jo aika pahasti siltä. Sen valon ei pitäs syttyä ollenkaa jos se boxi on irti tai sit se palais kokoajan.
-Eemeli
Auto jonka sulakkeena toimivat renkaat, on kallis rakentaa. Paitsi jos on huonot renkaat.
Auto jonka sulakkeena toimivat renkaat, on kallis rakentaa. Paitsi jos on huonot renkaat.
- Vee8
- Aina äänessä
- Viestit: 1138
- Liittynyt: 25 Touko 2004, 15:34
- Auto: Ford Mustang GT 1994
Ford Mustang Sportsroof 1969
Ford F-150 Lariat 2007
Ford Mustang Mach-E GT - Paikkakunta: Kangasala
Re: Mustang gt 95 airbag moduulin piipitys/nollaus
Airbag toimii kyllä ilman keskikonsolin sisällä olevaa palikkaa, anturit on johdotettu suoraan pusseille, eli sen voi vaikka lingota jorpakkoon ja jos menee itse perässä, niin bagit laukee kyllä.
Se vehe on virallisesti Airbag Monitor, eli nimensä mukaisesti vaan vahtii kytkentöjen ja muiden kuntoa, sekä ilmoittaa vikavalolla jos jotain moitittavaa.
Jos arvata tarvii, niin itse Monitori (boxi) on nyt rikki.
Se vehe on virallisesti Airbag Monitor, eli nimensä mukaisesti vaan vahtii kytkentöjen ja muiden kuntoa, sekä ilmoittaa vikavalolla jos jotain moitittavaa.
Jos arvata tarvii, niin itse Monitori (boxi) on nyt rikki.
"eihän tässä nyt kuinkaan voi käydä"
_____________________________
-----Ford Mustang GT -94-----
---Ford Mustang Sportsroof 1969 projekti----
---Ford F-150 Lariat 5.4 Triton 4x4---
------Ford Mustang Mach-E------
_____________________________
-----Ford Mustang GT -94-----
---Ford Mustang Sportsroof 1969 projekti----
---Ford F-150 Lariat 5.4 Triton 4x4---
------Ford Mustang Mach-E------
- Pappacosworth
- Aina äänessä
- Viestit: 1375
- Liittynyt: 06 Tammi 2008, 10:13
- Auto: Focus ST250/Aprilia Tuareg 660
- Paikkakunta: Koskenkorva
- Viesti:
Re: Mustang gt 95 airbag moduulin piipitys/nollaus
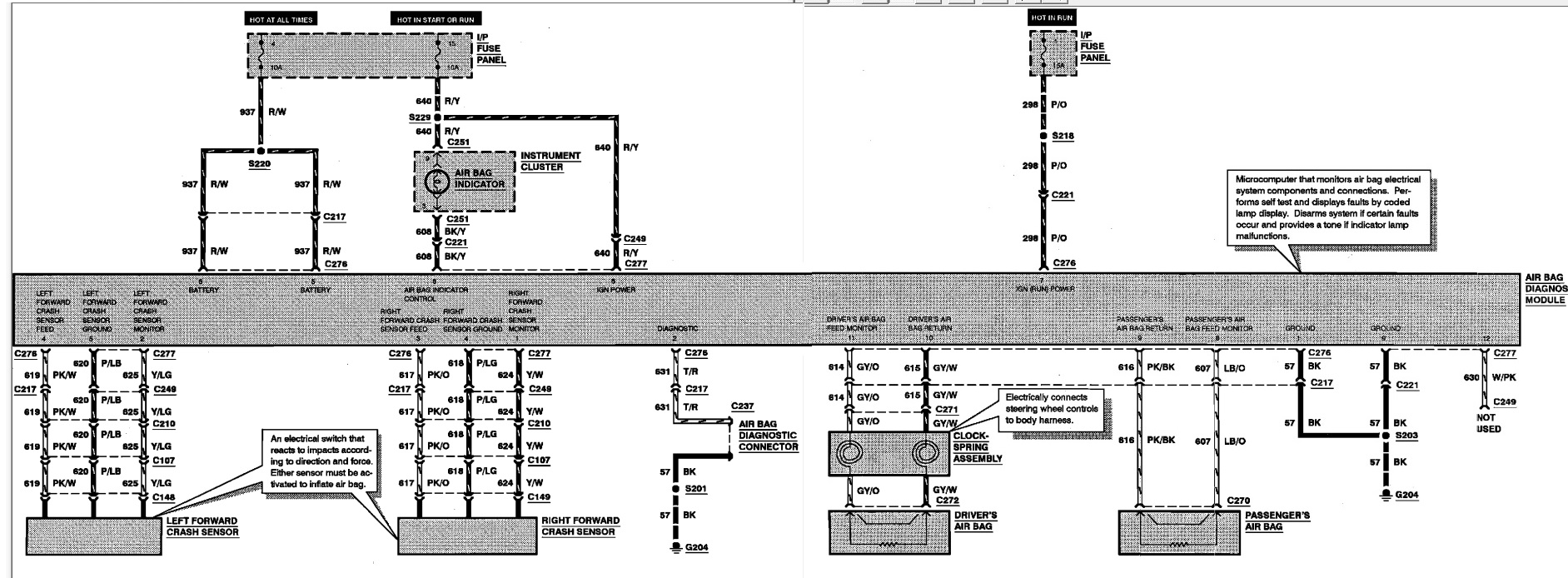
Miten perustelet äskeisen väitteen? katso kuva
#ECU tuning Ford 1987-2019#
https://texelectric.webnode.fi/
https://texelectric.webnode.fi/